Description
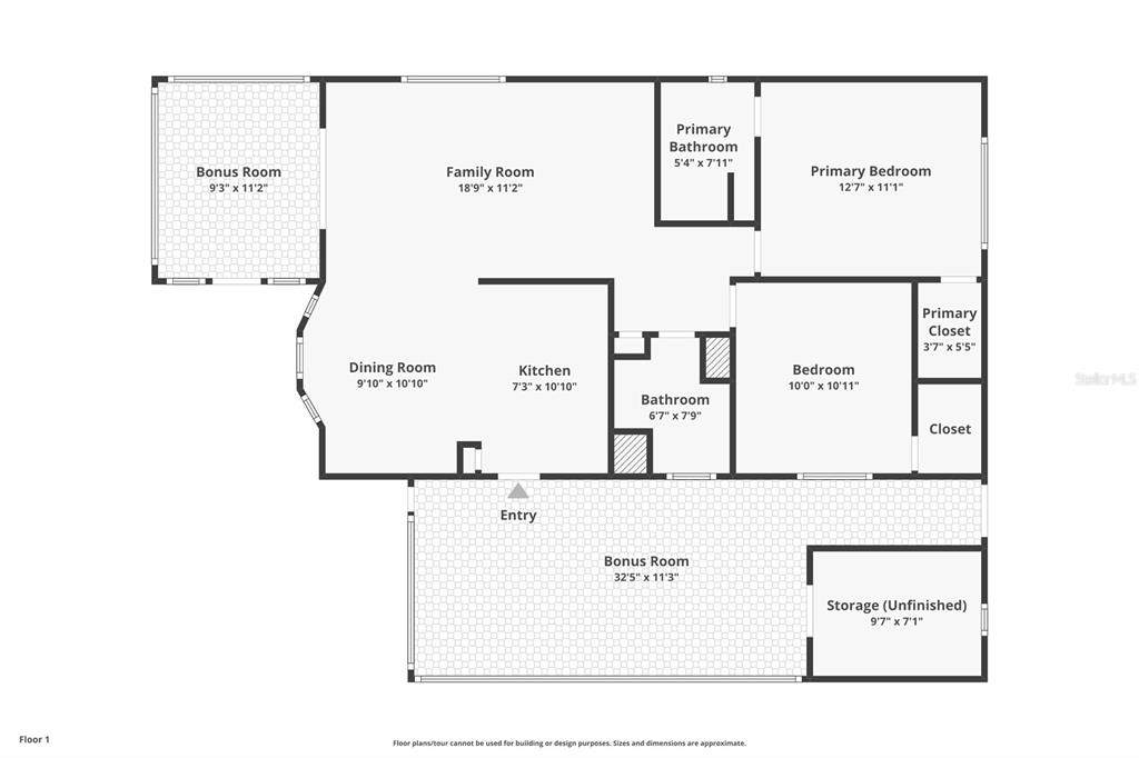
One or more photo(s) has been virtually staged. Price Improvement and new dishwasher being installed! Welcome to Lake Conley Mobile Home Park, where this delightful 2-bedroom, 2-bath home invites you to embrace the very best of Florida living. Passing 4-Point inspection 1/26/2025. Step inside to a bright and welcoming layout featuring a beautifully appointed kitchen with beautiful countertops and stainless-steel appliances, perfectly complemented by a dedicated living room and dining area ideal for everyday comfort or entertaining. Laminate wood flooring flows throughout the living spaces, adding warmth and continuity to the home. Each bedroom is generously sized and includes a walk-in closet, offering plenty of storage, while one of the bathrooms has been recently renovated with fresh, modern updates. Underlayment was updated 1 year ago. The Florida room is a true bonus—an inviting retreat for unwinding, enjoying a good book, or savoring peaceful moments throughout the day. Covered parking keeps your vehicle protected from the Florida sun, and the fully screened, covered lanai creates an exceptional space for entertaining guests or simply enjoying the gentle outdoor breeze. An exterior shed doubles as a laundry room and provides even more storage space. This beautifully maintained, gated 55+ community offers an active and engaging lifestyle with a vibrant clubhouse, regular potluck dinners, and countless opportunities to connect with neighbors and make lasting friendships. Enjoy easy access to lake life, including fishing and boating, along with community amenities such as the pool and shuffleboard courts. Ideally located, Fred Howard Park is just 9.3 miles away, the world-famous Sponge Docks are only 6.8 miles away, and Tampa International Airport is a convenient 17 miles from home—bringing beaches, culture, and travel all within easy reach..
-
2BEDS
-
0.08ACRES
-
2BATHS
-
01/2 BATHS
-
1,056SQFT
-
$128$/SQFT
School Ratings & Info
Description
One or more photo(s) has been virtually staged. Price Improvement and new dishwasher being installed! Welcome to Lake Conley Mobile Home Park, where this delightful 2-bedroom, 2-bath home invites you to embrace the very best of Florida living. Passing 4-Point inspection 1/26/2025. Step inside to a bright and welcoming layout featuring a beautifully appointed kitchen with beautiful countertops and stainless-steel appliances, perfectly complemented by a dedicated living room and dining area ideal for everyday comfort or entertaining. Laminate wood flooring flows throughout the living spaces, adding warmth and continuity to the home. Each bedroom is generously sized and includes a walk-in closet, offering plenty of storage, while one of the bathrooms has been recently renovated with fresh, modern updates. Underlayment was updated 1 year ago. The Florida room is a true bonus—an inviting retreat for unwinding, enjoying a good book, or savoring peaceful moments throughout the day. Covered parking keeps your vehicle protected from the Florida sun, and the fully screened, covered lanai creates an exceptional space for entertaining guests or simply enjoying the gentle outdoor breeze. An exterior shed doubles as a laundry room and provides even more storage space. This beautifully maintained, gated 55+ community offers an active and engaging lifestyle with a vibrant clubhouse, regular potluck dinners, and countless opportunities to connect with neighbors and make lasting friendships. Enjoy easy access to lake life, including fishing and boating, along with community amenities such as the pool and shuffleboard courts. Ideally located, Fred Howard Park is just 9.3 miles away, the world-famous Sponge Docks are only 6.8 miles away, and Tampa International Airport is a convenient 17 miles from home—bringing beaches, culture, and travel all within easy reach..
Related Properties
© 2026 My Florida Regional MLS DBA Stellar MLS. All rights reserved. All listings displayed pursuant to IDX. All listing information is deemed reliable but not guaranteed and should be independently verified through personal inspection by appropriate professionals. Listings displayed on this website may be subject to prior sale or removal from sale; availability of any listing should always be independently verified. Listing information is provided for consumers personal, non-commercial use, solely to identify potential properties for potential purchase; all other use is strictly prohibited and may violate relevant federal and state law. Data last updated 2026-03-07T06:52:05.507.
